< >

Marrickville 280 Wardell Road

Spacious Family Retreat in Prime Location!

   2     2    House
For Lease
Rent: $1400 per week

Overview

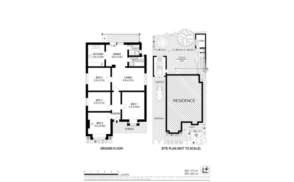
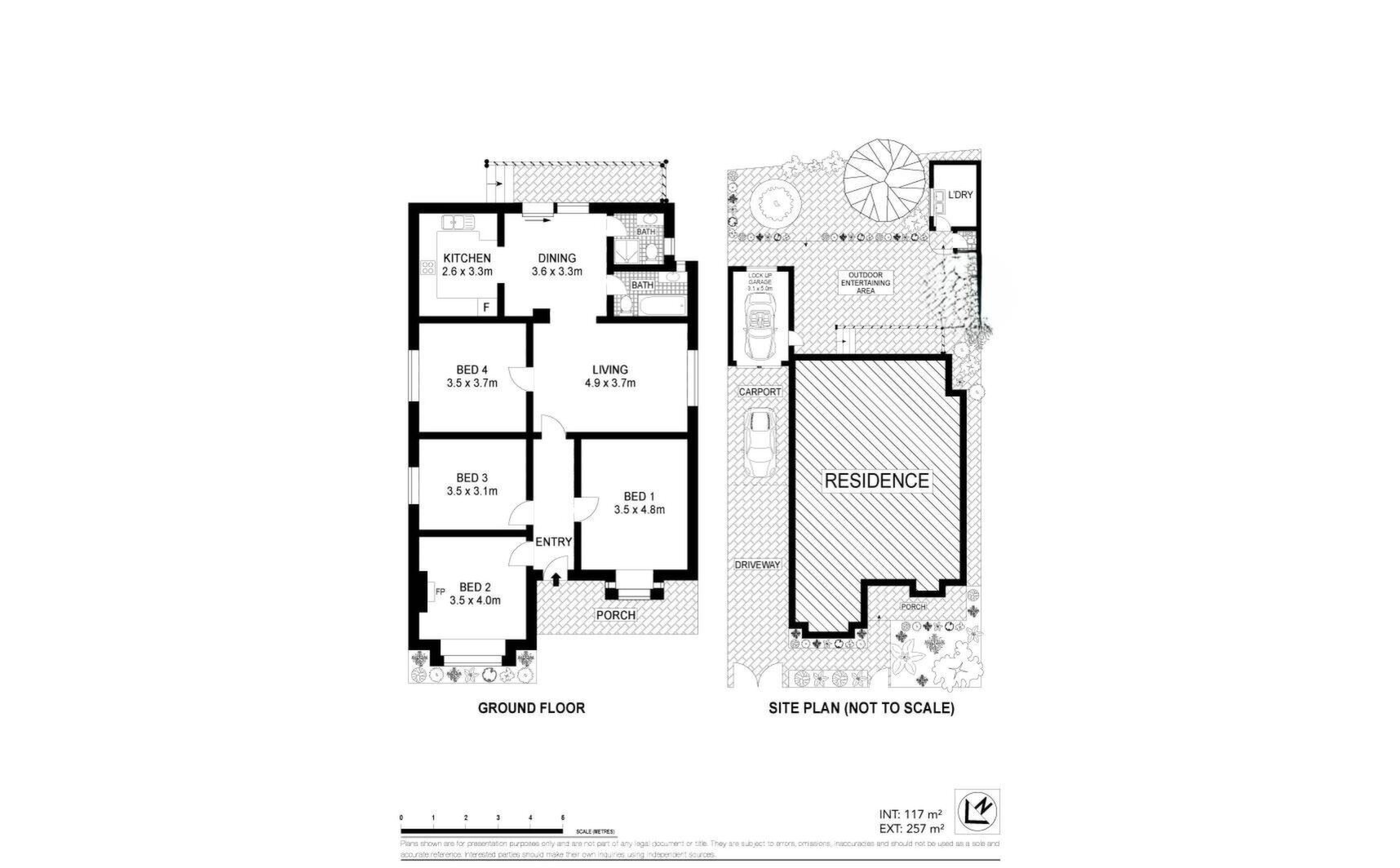
This prestigious four-bedroom Federation residence offers the rare combination of timeless charm and generous proportions, enhanced by modern comforts essential for contemporary living. Rich in character, the home showcases ornate fireplaces, soaring decorative ceilings, stained-glass doors and elegant bay windows, complemented by:

Timber floors and freshly painted throughout A brand-new kitchen with quality appliances, including a dishwasher Spacious formal living and dining areas with an open-plan feel Two fully tiled bathrooms, one featuring a bathtub A paved alfresco entertaining area Landscaped gardens and a large external laundry with ample storage and a separate WC Reverse-cycle air conditioning in the main bedroom and living room Gas outlets for heating Lock-up garage as well as parking in the driveway 350m to Dulwich Hill station and light rail
Perfectly positioned, you'll be just moments from the golf course, local parks, schools, the Cooks River cycleway, light rail, shops and vibrant cafés.

What more could you ask for?

Get to know Marrickville

Local amenities contribute to Marrickville's appeal as a thriving and culturally diverse neighborhood. Enmore Road and Illawarra Road serve as lively thoroughfares with a diverse array of cafes, restaurants, and shops, catering to the varied tastes of its residents.

Read more about Marrickville

Nearby Schools*

Public

Canterbury Boys High School, Canterbury Girls High School, Canterbury Public School, Dulwich High School of Visual Arts and Design, Dulwich Hill Public School, Edgeware School, Ferncourt Public School, Lewisham Public School, Marrickville High School, Marrickville West Public School, Summer Hill Public School, Undercliffe Public School, Wilkins Public School, Yeo Park Infants School

Private

Casimir Catholic College, Christian Brothers High School Lewisham, Our Lady of Lourdes Catholic Primary School, St Brigid's Catholic Primary School, St Maroun's College, St Paul of the Cross Catholic Primary School, Trinity Grammar School, Waranara School * Nearby schools are selected based on straight-line distance only.

For Lease

Rent: $1400 per week
Bond: $5600
Availability: Available Now

Elizabeth Celi — 0484 648 943


Open Times

Please contact Elizabeth Celi to arrange an appointment.

Property Features

  • Garages 1
  • Uncovered Carspaces 1
  • Secure Parking
  • Floorboards
  • Balcony
  • Air Conditioning

Share this property

Contact Agent

×
< >
×
×
Property Enquiry